Hajdú-Bihar megye, Hosszúpályi


 

Ingatlan adatai

Irányár: 2 600 000 Ft/hó
Típus: kereskedelmi/ipari ingatlan
Kategória: kiadó
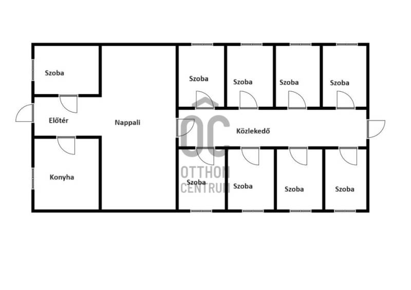
Alapterület: 288 m2
Fűtés: -
Állapota: -
Szobák száma: -
Építés éve: 2003
Szintek száma: -
Telekterület: -
Kert mérete: -
Erkély mérete: -
Felszereltség: -
Parkolás: -
Kilátás: -
Egyéb extrák:  
-

Részletes leírás

Debrecentől 20 percre, Hosszúpályiban, kiváló adottságokkal rendelkező családi ház, minimum 23 fő befogadására alkalmasan, hosszú távra KIADÓ!Cégek figyelmébe! Dolgozói elhelyezése gondot jelent? Itt a megoldás!Az ingatlan jól megközelíthető helyen található, autópályán könnyen elérhető. Több autó beállásának van lehetősége az udvarra. 2003-as építésű masszív nettó 288 nm-es tégla épület.Az elmúlt időszakban felújításon esett át. Szobái bútorozottak, a konyhák, fürdőszobák, gépesítettek! Kiváló lehetőség cégeknek, akik egy helyen szeretnének több személyt elszállásolni, kulturált környezetben.Ára: 2 600 000 Ft. minimum 1 éves szerződés megkötése esetén, rezsivel együtt!A bérleti szerződés megkötéséhez 2 havi kaució szükséges!Számlaképes!További felvilágosításért várom megkeresését!

Hirdető adatai

Nyomtatóbarát változata
Ingatlan hirdetés ajánlása
banner
Hirdető neve: Otthon Centrum
Kapcsolattartó: Hriczuné Sápi Júlia
Hirdető telefonszáma: +36 70 461 9406
Honlap: -

Üzenetet küldhet a hirdetőnek:
Az Ön neve:
Az Ön e-mail címe:
Üzenet: