Budapest, II.kerület


 

Ingatlan adatai

Irányár: 980 000 000 Ft
Típus: ház
Kategória: eladó
Alapterület: 540 m2
Fűtés: gáz (cirko)
Állapota: -
Szobák száma: 9
Építés éve: -
Szintek száma: -
Telekterület: 1 319 m2
Kert mérete: 1 319 m2
Erkély mérete: -
Felszereltség: -
Parkolás: -
Kilátás: -
Egyéb extrák:  
-

Részletes leírás

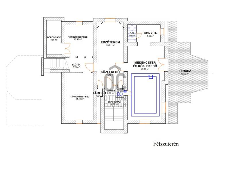
A budai II. kerületi Rózsadomb a főváros és az ország egyik legnagyobb presztízzsel bíró területe.Ha szigorúan vesszük földrajzilag, a szecesszió idején épült nyaraló villa Rézmál városrészhez (melynek jelentése ugyancsak Rózsadomb) tartozik, hiszen a Bimbó út páros oldalán helyezkedik el.Anno az 1890-es évek végén, mikor épült teljesen más volt a környezte. Ma már a kerület egyik frekventált részén helyezkedik el 1319 m2-es telken. A ház múltja és az egykori nagypolgári hangulat megőrzése fontos volt a jelenlegi tulajdonosoknak, így az épület korszerű, ezáltal kényelmes, ugyanakkor hagyománytisztelet és egyfajta időtlen báj árad belőle. Jelenleg 3 emelet biztosítja az életteret 2 generáció számára.A 90-es évek végén, valamint a 2000-es évek elején történt nagyobb felújítás, átépítés az ingatlanon. A háború nyomait eltüntetve, visszakapta színét a homlokzat és a kék ablakok fehér kerettel együttesen pedig visszaidézik a ház eredeti megjelenését. Kulcsfontosságú a szoros kapcsolat a kerttel, így megépítésre került a kíváncsi szempároktól (a ház hátsó részén) elrejtett téli kert, ahonnan egy lépcső vezet le a félszuterén szintre. Itt kialakításra került a rekreációs részleg, mely magába foglalja az épített medencét, gőzterápiás helyiséget, edzőtermet. Mindez tovább bővíthető (szauna, sókamra, moziszoba stb.), hisz a szinten nagyobb helyiségek tárolóként funkcionálnak jelenleg. A medencetérből elérhető teakonyha és a hívogató külső terasz, amik még kellemesebbé és komfortosabbá teszik a kikapcsolódást. Szintén ezen az emeleten „épített” borospince méltó helye nemes gyűjteményeknek és a mellette lévő helyiség akár autentikus helyszíne lehet borvacsoráknak. A szintek közötti mozgást a korabeli lépcsőházon keresztül tehetjük meg.A magasföldszinten, valamint az emeleten is hatalmas, szellős terek uralkodnak. Mindkét emeleten a korábban kisebb felújításokon átesett faablakok, spaletták, magas kazettás beltéri ajtók visszaadják a századforduló hangulatát, akárcsak a szobák klasszikus elrendezései. Sehol nem lett beépítve a közel 4 méteres belmagasság, így adott a nagypolgári miliő. Az ingatlan hasznos alapterülete a tetőtér beépítésével növelhető, mely további ~90 m2 pluszt jelent. A ház fölé magasodó toronyszoba az ingatlan ékköve, mely lépcsőház legfelső részéről közelíthető meg. Az elénk tárúló panoráma elragadó (Parlament, Citadella, Budai Várnegyed, Duna és az őt átszelő hidak). Innen a fővárosunk évszakonként változó arcát kémlelhetjük. Ez a szoba lehet helyszíne mélyenszántó gondolatoknak, vagy a világ elől meghúzódva egy jó könyv olvasásának akár.Ahogy Endrődi Sándor is írta versében: „Itt fenn Budán, a Rózsadombon /Igazán rózsás a világ!...… Itt a dombon, hála Isten, /Jó világ van, /Kis királyként éldegélek/Ebben a kis szürke házban.Minden vágyam teljesül, bár/ Ki se mondom, /S ha elfogy a garasom, hopp! /Arra sincsen semmi gondom.Lenézek a dulakodó / Nagy városra, / Hol az ember embertársát / Sárba löki, megtapossa. –S egyszeriben oly kicsiny lesz/ Minden ottan, / S oly nagy itt fenn, a dombon, hol/ Szeretet és nyugalom van.”Jöjjön el és tekintse meg!Csatlakozzon a villa történetéhez, folytassa azt vagy írja újra teljesen!

Hirdető adatai

Nyomtatóbarát változata
Ingatlan hirdetés ajánlása
banner
Hirdető neve: Otthon Centrum
Kapcsolattartó: Keresztesi Lídia
Hirdető telefonszáma: +36 70 469 3046
Honlap: -

Üzenetet küldhet a hirdetőnek:
Az Ön neve:
Az Ön e-mail címe:
Üzenet: