Tolna megye, Szekszárd


 

Ingatlan adatai

Irányár: 25 000 000 Ft
Típus: ház
Kategória: eladó
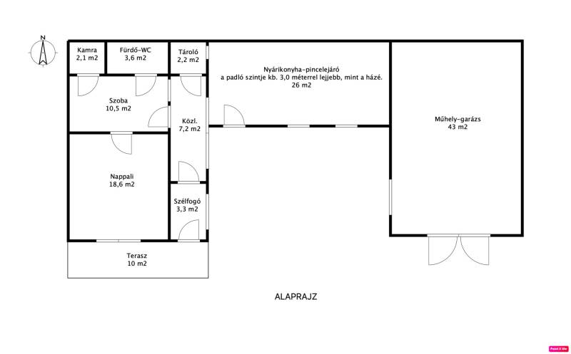
Alapterület: 48 m2
Fűtés: -
Állapota: felújítást igényel
Szobák száma: 1
Építés éve: 1920
Szintek száma: -
Telekterület: 783 m2
Kert mérete: 783 m2
Erkély mérete: 10 m2
Felszereltség: -
Parkolás: -
Kilátás: -
Egyéb extrák:  
-

Részletes leírás

Felújítandó épület eladó Szekszárd Bakta városrészen.A ház értékei:- csendes környék, közelben boltok, iskola- ipari áram- nagyméretű műhely és garázs egyben- széles telek- száraz épület- 2db nagyméretű ciszterna (a tulajdonos elmondása alapján 20 m3-ek)Sok lehetőség rejlik az ingatlanban, de inkább fedezzük fel együtt!Menjünk nézzük meg!Regisztrációs szám: H503595Teljes körű pénzügyi megoldások ügyintézése díjmentesen.Minden élethelyzetre végzünk pénzügyi elemzést - ha vásárolni szeretne, segítünk, hogy ezt a legjobb feltételek mellett tegye; ha eladni szeretné ingatlanát, nézzük meg, hátha érdemes meglévő hitelét átváltani.Keressen bizalommal, szakértők vagyunk!

Hirdető adatai

Nyomtatóbarát változata
Ingatlan hirdetés ajánlása
banner
Hirdető neve: Otthon Centrum
Kapcsolattartó: Bihary Szabolcs
Hirdető telefonszáma: +36 70 716 9966
Honlap: -

Üzenetet küldhet a hirdetőnek:
Az Ön neve:
Az Ön e-mail címe:
Üzenet: